PROJECT
P.06
仙台市青葉区青葉町
Tennis court aobamachi
中庭と色のある賃貸住宅。
神社仏閣が多く並ぶエリア
001
喧噪からちょっと離れた、ほどよいマチナカの暮らし。
北仙台駅から徒歩約8分。中心部への通勤・通学は地下鉄利用であっという間。自転車や徒歩でもOKの、都心の喧噪とほどよく距離を置いた仙台市青葉区青葉町に、また新しい賃貸住宅が誕生しました。少し歩けば、青葉神社や北山五山などもあり、ときには散歩がてら時間がゆっくり流れる寺院巡り。そんな気分転換も、このエリアならではです。
002
中庭を囲み、内に向かって開く心地よさ。
実はこの賃貸住宅、敷地の3方に墓地がありますが、ひとたび内に入るとまったく気になりません。その秘密は、ロの字型にした建物の形状にあります。一見、外からは閉鎖的な建物に映るものの、アプローチを抜けた先に現れるのは、シンボルツリーのある中庭と全8戸の玄関。そこは、いい意味で周囲から隔離されたスペースとなっており、すべての住戸が中庭に向かって開くことで、敷地条件に左右されず気持ちよく過ごせるように配慮しています。
屋上テラスを含め、計3層の居住空間。
玄関ドアを開けると、さらにうれしいギャップが待っています。メゾネットタイプの1Fは広々とした土間ホールで、ここは寝室やオープンに使える趣味の空間など、ライフスタイルによって用途は多彩。階段を上がった先には吹き抜けのある寛ぎスペースがあり、高窓から招き入れる陽光が明るく、開放的な暮らしを演出。その上にはロフト、さらに上には屋上テラスもあるなど、外見からは想像できないような、広く、のびやかな居住空間が開かれています。
003
鮮やかなキーカラーを取り入れて。
間取りもそれぞれ異なるこの賃貸住宅。入居したその日から「色のある生活」がはじまるのも特徴です。各住戸、内装の一部にデザインアクセントとして赤や緑などのキーカラーを取り入れ、鮮やかな雰囲気に。部屋の雰囲気に合わせてお気に入りのインテリアを選び、自分色に染めていけるのも楽しみです。ほかにも意匠性の高いキッチンや、製作のバスルームなどディテールへのこだわりも、何気ない毎日をちょっと楽しく、気持ちをうれしくさせてくれます。
-
01
土間ホール
土間ホールは、一部住戸を除き中庭を望みながらオープンに使えます。自転車やアウトドアグッズのお手入れにも十分な広さがあり、シンボルツリーを傍らに自分の好きな時間に浸ることができます。
-
02
吹き抜け空間
メゾネットタイプはあっても、2Fから吹き抜けが広がる賃貸住宅はなかなかありません。これによりプライベートな時間は開放的に。南からの爽やかな陽光とともに、のびのび戸建て気分で暮らせます。
-
03
屋上テラス
すべての住戸にある屋上テラスは、隣や正面の住戸からの視線が気にならないプライベートな外部空間。空を飛んでいる鳥しか覗けないスペースで、頭上には空の青色だけが広がります。
004
DADAとつくる
3方向が「お墓」という特殊な環境から導かれた建物
計画地は周囲3方を墓地に囲まれています。賃貸住宅を計画するうえで、今後入居される不特定の方に「お墓の隣に住む」という大きな特徴を受け入れてもらう必要がありました。
まず、この敷地で最大住戸数と駐車台数を確保できる配置計画を検討する中で、西側に建物を寄せて南北に2つのボリュームで建てると、最大数を確保できることがわかりました。さらに各住戸の床面積を広く確保するため、敷地の形に合わせた建物形状とすることでG型のような中庭を有する建物としました。
中庭を設けることで、外の墓地側ではなく中庭側に開くことができます。そこで開口部なども工夫し、隣地の墓地を感じることなく生活ができるようなプランを考えました。採光の面でも、2階の吹き抜けに面したハイサイドライトから南の光が全室に得られるようなつくりとなっています。
-
SPEC
物件名 tennis court aobamachi(テニスコートあおばまち) 築年月 2017年7月 構造/種別 木造2階建 総戸数 8戸 駐車場 有 住所 宮城県仙台市青葉区青葉町 交通 仙台市営地下鉄南北線「北仙台駅」(JR仙山線「北仙台駅」) 建物設備 プロパンガス、宅配ボックス -
EQUIPMENT
バストイレ別
洗面化粧台
バルコニー
エアコン
カラーモニター付インターホン
室内洗濯機置場
2口コンロ
追焚機能浴室
温水洗浄便座
フリーWi-Fi
他
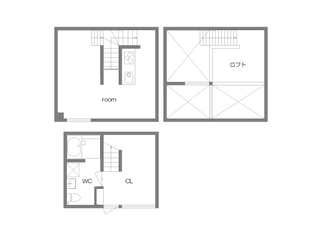
ROOMS
-
A
賃料 管理会社にお問い合わせください 管理費 --- 敷金/礼金 --- 間取り 1LDK+ロフト 面積 37.08㎡(ロフトは除く) 入居可能日 2017年7月 -
B
賃料 管理会社にお問い合わせください 管理費 --- 敷金/礼金 --- 間取り 1LDK+ロフト 面積 44.71㎡(ロフトは除く) 入居可能日 2017年7月 -
C
賃料 管理会社にお問い合わせください 管理費 --- 敷金/礼金 --- 間取り 1LDK+ロフト 面積 45.54㎡(ロフトは除く) 入居可能日 2017年7月 -
D
賃料 管理会社にお問い合わせください 管理費 --- 敷金/礼金 --- 間取り 1LDK+ロフト 面積 45.54㎡ (ロフトは除く) 入居可能日 2017年7月 -
E
賃料 管理会社にお問い合わせください 管理費 --- 敷金/礼金 --- 間取り 1LDK+ロフト 面積 57.96㎡(ロフトは除く) 入居可能日 2017年7月 -
F
賃料 管理会社にお問い合わせください 管理費 --- 敷金/礼金 --- 間取り 1LDK+ロフト 面積 44.71㎡(ロフトは除く) 入居可能日 2017年7月 -
G
賃料 管理会社にお問い合わせください 管理費 --- 敷金/礼金 --- 間取り 1LDK+ロフト 面積 57.96㎡(ロフトは除く) 入居可能日 2017年7月 -
H
賃料 管理会社にお問い合わせください 管理費 --- 敷金/礼金 --- 間取り 1LDK+ロフト 面積 49.68㎡(ロフトは除く) 入居可能日 2017年7月 -
賃料 管理費 敷金/礼金 間取り 面積 入居可能日 -
賃料 管理費 敷金/礼金 間取り 面積 入居可能日 -
賃料 管理費 敷金/礼金 間取り 面積 入居可能日 -
賃料 管理費 敷金/礼金 間取り 面積 入居可能日 -
賃料 管理費 敷金/礼金 間取り 面積 入居可能日 -
賃料 管理費 敷金/礼金 間取り 面積 入居可能日 -
賃料 管理費 敷金/礼金 間取り 面積 入居可能日
ACCESS
CONTACT
入居に関するお問い合わせは(株)ミニミニ仙台薬師堂店(022-788-0121)まで、
そのほかのお問い合わせはDADA CUBE専用フォームにてご連絡ください。




























































































